Parkside FV
Project Location: 8550 Warner Avenue, Fountain Valley
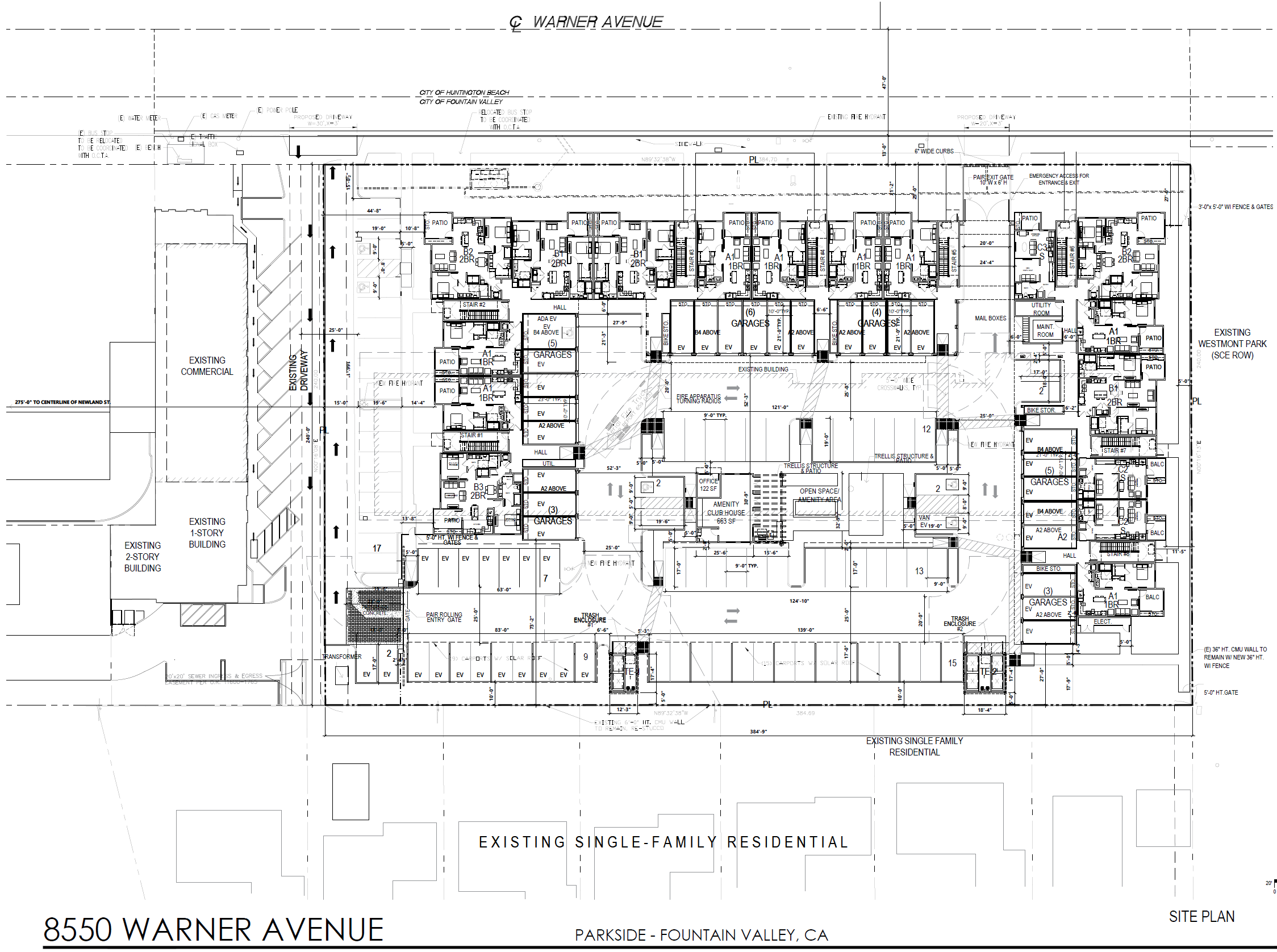
The Parkside FV project includes the Redevelopment of the existing 2.119 acre site with an existing 18,782 square foot commercial center into a new 3-story 72 unit apartment complex comprised of nine (9) studio units, 37 one-bedroom units, and 26 two-bedrooms units. The project will include 83 surface parking spaces and 26 garage parking spaces. Requested entitlements include a General Plan Amendment from Local Commercial to High Density Residential, a Zoning Map Amendment from C1 Local Business to R4 High Density Residential, a Precise Plan and Conditional Use Permit for the construction of the building and site layout, and a Density Bonus and Affordable Housing Agreement for a 15% Density Bonus and 15% affordable units.
Related Documents
NOTICE OF INTENT TO ADOPT A MITIGATED NEGATIVE DECLARATION AND NOTICE OF PUBLIC HEARING
PUBLIC REVIEW: The MND is available for a 30-day public review period beginning January 14, 2026, and ending February 13, 2026.
AGENCY/PUBLIC COMMENTS: Written comments on the MND for the proposed project must be received no later than February 13, 2026.
Send comments by mail to: City of Fountain Valley
Planning and Building Department
10200 Slater Avenue
Fountain Valley, California 92708
Attention: Steven Ayers, Principal Planner
Or by email to planning.building@fountainvalley.gov
(please include the name of the project in the subject heading)
8550 Warner Avenue Project Initial Study - Mitigated Negative Declaration
Appendices
Appendix A CalEEMod Results
Appendix B Transportation Screening Assessment
Appendix C Construction Health Risk Assessment
Appendix D Cultural Resources Assessment
Appendix E GeoTechnical Engineering Investigation
Appendix F Water Quality Management Plan
Appendix G Noise Measurement Data and Modeling
Appendix H Fountain Valley School District Will-Serve Letter
Contact:
Project Planner: Steven Ayers
Steven.Ayers@fountainvalley.org